Landhaus Turo von Fingerhut Haus

Turo

Hausanbieter Fingerhut Haus
Fingerhut Haus
Preis Ausbauhaus auf Anfrage
schlüsselfertig auf Anfrage
Haustyp Landhaus
Wohnfläche 154,97 m²
Zimmer 5 / 3 Schlafzimmer

*zur Katalogbestellung leiten wir Sie zu unserem Schwestermagazin fertighaus.com weiter


Bautafel

Hausname Turo
Preis Ausbauhaus auf Anfrage
schlüsselfertig auf Anfrage
Bauweise Fertighaus
DachformSatteldach
Dachneigung30°
Kniestock180 cm
HaustypLandhaus
Hausstil Modern
Verwendung Einfamilienhaus
Energiestandard Effizienzhaus 55

Preisübersicht
Turo


Schlüsselfertig

Preis auf Anfrage


Die gezeigten Abbildungen zeigen zum Teil Sonderleistungen gegen Mehrpreis.

Ausbauhaus

Preis auf Anfrage


Die gezeigten Abbildungen zeigen zum Teil Sonderleistungen gegen Mehrpreis.

Bausatzhaus

-


In dieser Ausbaustufe ist das Haus leider nicht verfügbar.

Bestellen Sie jetzt den kostenlosen Fingerhut Haus-Hauskatalog!

Fingerhut Haus-Hauskatalog unverbindlich bestellen. Katalog kostenlos anfordern*

*zur Katalogbestellung leiten wir Sie zu unserem Schwestermagazin fertighaus.com weiter

Wo baut Fingerhut Haus das Haus Turo?

In den folgenden Bundesländern / Ländern kann das Haus gebaut werden:

Turo

Hausbeschreibung

Stilvolle Optik und moderne Architektur

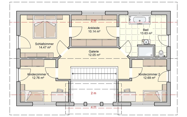
Die Kombination aus Holz- und Putz-Fassade machen den Hausentwurf Turo einzigartig. Auch im inneren zieht sich dies wie ein roter Faden durch. Der weitläufige Wohn- und Essbereich mit seinen großen Türen verbinden Wohnkultur und Natur perfekt miteinander. Durch die moderne Galerie entsteht noch einmal ein großes Plus an Transparenz. Im Obergeschoss wurden zwei Kinderzimmer und ein Schlafzimmer mit direktem Zugang zur Ankleide und dem anschließendes Badezimmer, eingeplant.  

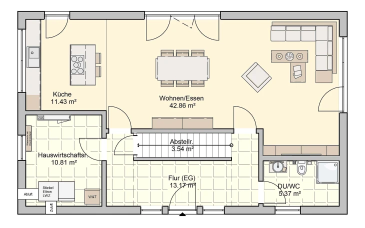
Grundrisse und Hausmaße

Grundrisse

Hausmaße

Etagen1,5
Zimmer5 / 3 Schlafzimmer
Wohnfläche154,97 m²
Abmessungen13,00 m x 8,00 m

Welche Serviceleistungen bietet Fingerhut Haus an?

Bauherren erhalten folgende Leistungen von Fingerhut Haus

Weitere Häuser von Fingerhut Haus



Fingerhut Haus

Fingerhut Haus


Fingerhut Haus GmbH & Co. KG

Hauptstraße 46
57520 Neunkhausen
Deutschland