Familienhaus Birkenallee von Gussek Haus

Birkenallee

Hausanbieter Gussek Haus
Gussek Haus
Preis ab 345.600 € (schlüsselfertig)
Haustyp Familienhaus
Wohnfläche 142,84 m²
Zimmer 6 / 4 Schlafzimmer

*zur Katalogbestellung leiten wir Sie zu unserem Schwestermagazin fertighaus.com weiter


Bautafel

Hausname Birkenallee
Preis ab 345.600 € (schlüsselfertig)
Bauweise Fertighaus
DachformSatteldach
Dachneigung38°
HaustypFamilienhaus
Hausstil Klassisch
Verwendung Einfamilienhaus
Energiestandard Effizienzhaus 55

Preisübersicht
Birkenallee


Schlüsselfertig

Preis ab 345.600 €


Alle Preise laut Hersteller als "ab"-Preise. Fehler oder Änderungen vorbehalten.

Ausbauhaus

a.A.


Diesen Preis erfahren Sie auf Anfrage vom Hersteller.

Bausatzhaus

-


In dieser Ausbaustufe ist das Haus leider nicht verfügbar.

Bestellen Sie jetzt den kostenlosen Gussek Haus-Hauskatalog!

Gussek Haus-Hauskatalog unverbindlich bestellen. Katalog kostenlos anfordern*

*zur Katalogbestellung leiten wir Sie zu unserem Schwestermagazin fertighaus.com weiter

Wo baut Gussek Haus das Haus Birkenallee?

In den folgenden Bundesländern / Ländern kann das Haus gebaut werden:

Birkenallee

Hausbeschreibung

  • klassisches Einfamilienhaus, Top-5-Entwurf von GUSSEK HAUS
  • imposante Fensterfront zur Gartenseite
  • L-förmiges Wohn-/Esszimmer mit raffiniert integrierter Küche
  • Diele mit praktischer Garderobenlösung
  • großzügige Galerie im Dachgeschoss
  • Elternschlafzimmer plus 3 Kinderzimmer

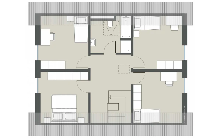
Grundrisse und Hausmaße

Grundrisse

Hausmaße

Etagen1,5
Zimmer6 / 4 Schlafzimmer
Wohnfläche142,84 m²
Abmessungen11,39 m x 8,79 m

Welche Serviceleistungen bietet Gussek Haus an?

Bauherren erhalten folgende Leistungen von Gussek Haus

Weitere Häuser von Gussek Haus



Gussek Haus

Gussek Haus


Gussek Haus Franz Gussek GmbH & Co. KG

Euregiostraße 7
48527 Nordhorn
Deutschland