Familienhaus Walnussallee von Gussek Haus

Walnussallee

Hausanbieter Gussek Haus
Gussek Haus
Preis ab 353.900 € (schlüsselfertig)
Haustyp Familienhaus
Wohnfläche 123,63 m²
Zimmer 5 / 3 Schlafzimmer

*zur Katalogbestellung leiten wir Sie zu unserem Schwestermagazin fertighaus.com weiter


Bautafel

Hausname Walnussallee
Preis ab 353.900 € (schlüsselfertig)
Bauweise Fertighaus
DachformSatteldach
Dachneigung38°
HaustypFamilienhaus
Hausstil Modern
Verwendung Einfamilienhaus
Energiestandard Effizienzhaus 55

Preisübersicht
Walnussallee


Schlüsselfertig

Preis ab 353.900 €


Alle Preise laut Hersteller als "ab"-Preise. Fehler oder Änderungen vorbehalten.

Ausbauhaus

a.A.


Diesen Preis erfahren Sie auf Anfrage vom Hersteller.

Bausatzhaus

-


In dieser Ausbaustufe ist das Haus leider nicht verfügbar.

Bestellen Sie jetzt den kostenlosen Gussek Haus-Hauskatalog!

Gussek Haus-Hauskatalog unverbindlich bestellen. Katalog kostenlos anfordern*

*zur Katalogbestellung leiten wir Sie zu unserem Schwestermagazin fertighaus.com weiter

Wo baut Gussek Haus das Haus Walnussallee?

In den folgenden Bundesländern / Ländern kann das Haus gebaut werden:

Walnussallee

Hausbeschreibung

  • attraktiver Architektenentwurf mit 38° Satteldach und 110 cm Drempel
  • exklusiver Flachdacherker mit schattenregulierenden Lamellenrollos
  • giebelseitiger Hauseingang ermöglicht geradläufige Treppenanlage
  • über 42 qm großer offener Wohn-, Ess-, Kochbereich
  • Küche und Essplatz im Erker als kommunikatives Zentrum des Hauses
  • 3 Schlafräume und eine zentrale Ankleide im Dachgeschoss
  • separater Funktionsraum für Waschmaschine/Trockner

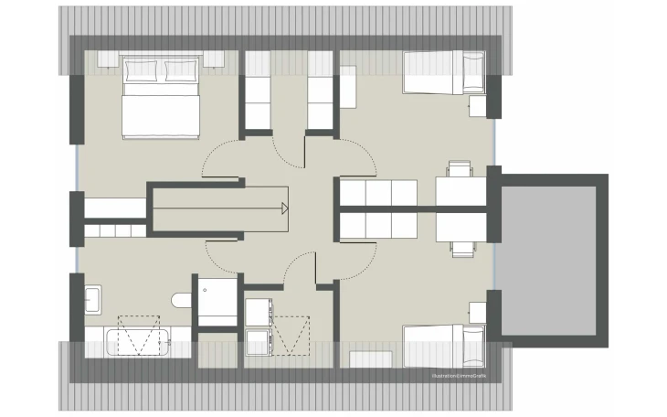
Grundrisse und Hausmaße

Grundrisse

Hausmaße

Etagen1,5
Zimmer5 / 3 Schlafzimmer
Wohnfläche123,63 m²
Abmessungen10,25 m x 8,25 m

Welche Serviceleistungen bietet Gussek Haus an?

Bauherren erhalten folgende Leistungen von Gussek Haus

Weitere Häuser von Gussek Haus



Gussek Haus

Gussek Haus


Gussek Haus Franz Gussek GmbH & Co. KG

Euregiostraße 7
48527 Nordhorn
Deutschland