Haas BT 111 B
*zur Katalogbestellung leiten wir Sie zu unserem Schwestermagazin fertighaus.com weiter
Bautafel
Hausname | Haas BT 111 B |
---|---|
Preis | ab 236.000 €
(Ausbauhaus) |
Bauweise | Fertighaus |
Dachform | Walmdach |
Dachneigung | 22° |
Haustyp | Bungalow |
Hausstil | Klassisch |
Verwendung | Einfamilienhaus |
Energiestandard | Effizienzhaus 40 Plus |
Preisübersicht
Haas BT 111 B
Schlüsselfertig
a.A.
Diesen Preis erfahren Sie auf Anfrage vom Hersteller.
Ausbauhaus
Preis ab 236.000 €
* Preis gilt für die Ausbaustufe "Ausbauhaus" für die Basisvariante des Hauses (jeweilige Basisvariante einfügen) inkl. Bodenplatte (bei Grundriss mit Technikraum im EG) bzw. Keller (bei Grundriss ohne Technikraum im EG) für Bauort Deutschland; lt. Preisliste 10/2021; ohne Sonderausstattung; Abbildungen können aufpreispflichtige Sonderausstattungen enthalten. Die angegeben Außenmaße beziehen sich auf die Außenmaße des Grundbaukörpers.
Voraussetzung für ein KfW-Effizienzhaus 40 Plus sind die Ausführung des Hauses auf Bodenplatte und Hausvariante gem. Haas Hauskatalog sowie passende Grundstückssituation.
Bausatzhaus
-
In dieser Ausbaustufe ist das Haus leider nicht verfügbar.
Bestellen Sie jetzt den kostenlosen Haas Haus-Hauskatalog!

*zur Katalogbestellung leiten wir Sie zu unserem Schwestermagazin fertighaus.com weiter
Wo baut Haas Haus das Haus Haas BT 111 B?
In den folgenden Bundesländern / Ländern kann das Haus gebaut werden:
Barrierefreier Winkelbungalow Fertighaus
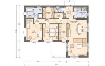
Einen Bungalow zu bauen bietet den Bauherren viele Vorteile, allen voran die barrierefreie Gestaltung, die es möglich macht, bis ins hohe Alter im eigenen Haus zu wohnen. Dass Bungalows dabei keineswegs altbacken aussehen müssen, beweist der Winkelbungalow Haas BT 111 B von Haas Haus. So hat das Fertighaus dank flachem Walmdach in anthrazit den Charakter von einem modernen Toskana Haus. Natürlich darf auch der großzügig überdachte Freisitz nicht unerwähnt bleiben. Wer würde es nicht genießen, abends auf der Terrasse des Winkelbungalows zu sitzen und bei einem Glas Wein den Tag ausklingen zu lassen? Auch innen kann der Bungalow überzeugen. So ist der Winkelbungalow Grundriss so konzipiert, dass die Zimmer von Wohn- und Schlafbereiche voneinander getrennt sind.Der Wohnbereich wurde offen konzipiert. Hier setzen wir vor allem auf fließende Übergänge und wirkungsvolle Blickachsen. Praktisch auch der kombinierte Hauswirtschafts- und Technikraum: Er spart den Bau von einem Keller und kann zugleich als Abstellraum genutzt werden.
Im Schlafbereich ist Platz für eine Familie mit Kind vorgesehen. Hier liegt auch das geräumige Familienbad. Das Kinderzimmer ist natürlich auch als Büro mit Aussicht in den Garten nutzbar.
Grundrisse und Hausmaße
Grundrisse
Hausmaße
Etagen | 1 |
---|---|
Zimmer | 3 / 2 Schlafzimmer |
Wohnfläche | 110,15 m² |
Abmessungen | 11,75 m x 14,60 m |
Welche Serviceleistungen bietet Haas Haus an?
Bauherren erhalten folgende Leistungen von Haas Haus
Weitere Häuser von Haas Haus

Haas Haus
Haas Fertigbau GmbH
Industriestraße 8
84326 Falkenberg
Deutschland