Kubushaus MAX Exklusiv J von MAX Holzbau

MAX Exklusiv J

Hausanbieter MAX Holzbau
MAX Holzbau
Preis schlüsselfertig auf Anfrage
Haustyp Kubushaus
Nutzfläche 208,33 m²
Zimmer 4 / 1 Schlafzimmer

*zur Katalogbestellung leiten wir Sie zu unserem Schwestermagazin fertighaus.com weiter


Bautafel

Hausname MAX Exklusiv J
Preis schlüsselfertig auf Anfrage
Bauweise Bio-Holzhaus
DachformFlachdach
HaustypKubushaus
Hausstil Modern
Verwendung Einfamilienhaus
Energiestandard Effizienzhaus 40 Plus

Preisübersicht
MAX Exklusiv J


Schlüsselfertig

Preis auf Anfrage


Alle Angaben laut Hersteller. Fehler oder Änderungen vorbehalten.

Ausbauhaus

a.A.


Diesen Preis erfahren Sie auf Anfrage vom Hersteller.

Bausatzhaus

-


In dieser Ausbaustufe ist das Haus leider nicht verfügbar.

Bestellen Sie jetzt den kostenlosen MAX Holzbau-Hauskatalog!

MAX Holzbau-Hauskatalog unverbindlich bestellen. Katalog kostenlos anfordern*

*zur Katalogbestellung leiten wir Sie zu unserem Schwestermagazin fertighaus.com weiter

Wo baut MAX Holzbau das Haus MAX Exklusiv J?

In den folgenden Bundesländern / Ländern kann das Haus gebaut werden:

MAX Exklusiv J

Hausbeschreibung

MAX Exklusiv J

Das Energieeffizienzhaus wurde als KfW 40 plus gebaut und funktional für die Zukunft ausgestattet. Ein doppelgeschossiger Essbereich mit 6 Meter Höhe bildet das Herzstück des Hauses, umgeben von raumhohen Fenstern nach Süden und Westen, mit Blick auf den Garten und das Saunahaus.Abgerundet wird das Haus mit einem stilvollen Gründach, das die ganzheitlich ökologische Gestaltung unterstreicht.

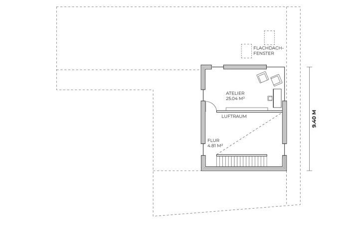
Grundrisse und Hausmaße

Grundrisse

Hausmaße

Etagen2
Zimmer4 / 1 Schlafzimmer
Nutzfläche208,33 m²
Abmessungen20,35 m x 18,50 m

Welche Serviceleistungen bietet MAX Holzbau an?

Bauherren erhalten folgende Leistungen von MAX Holzbau

Weitere Häuser von MAX Holzbau



MAX Holzbau

MAX Holzbau


MAX-Haus GmbH

Prendener Straße 4
16348 Marienwerder OT Ruhlsdorf
Deutschland